Localisation
11 rue Saint Cyr, 56500 Moréac.
Particularité(s)
Ancienne école réhabilitée en logements d’habitation, située au cœur de Moréac.
Type d’opération
Vente de logements neufs.
En chiffres
10 logements d’habitation dont 4 maisons et 5 appartements, avec jardin.
Restant à la vente
Plus aucun lot à la vente.
Prix à partir de
Selon grille de prix.
Date de réservation possible
Plus de réservation.
Date de livraison
Tous les lots ont été livrés.
Les Lofts de Moréac en images
Photos extérieures des maisons et appartements, suite à la rénovation en cours de l’ancienne école de Moréac.
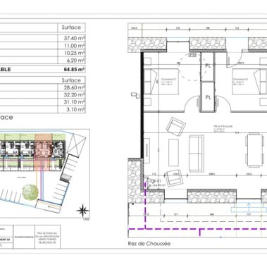
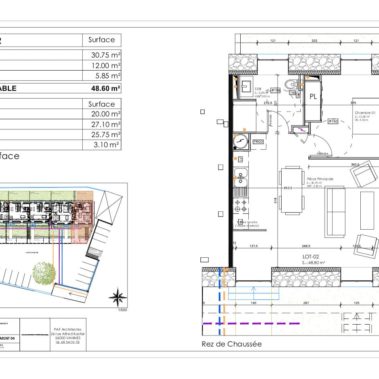
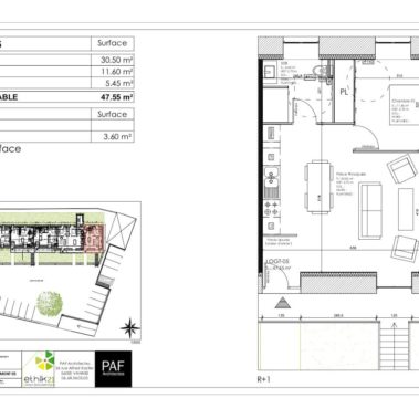
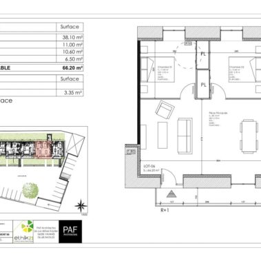
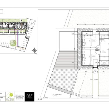
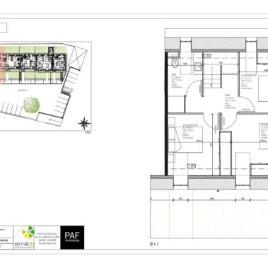
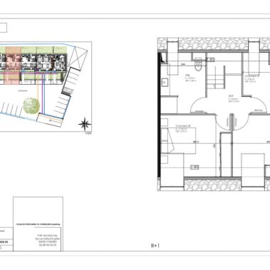
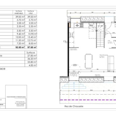
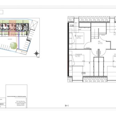
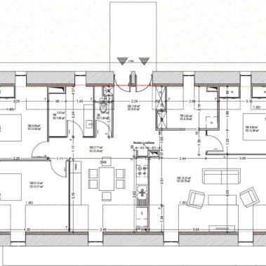
Plans des Loft de Moréac
L’ensemble des plans des maisons et appartements des Lofts de Moréac (documents non contractuels).
Extrait du permis de construire du projet des Loft de Moréac
Plan de situation, plan de masse, exsistants, façades existantes, façades projet … ensemble de documents faisant partie intégrante du permis de constuire déposé. (documents non contractuels).
Façades des Loft de Moréac
Façades des Lofts de Moréac (nord, sud, est, ouest …) du dossier de permis de construire de Moréac.




































































