
Localisation
6 rue Huette, 56400 Auray
Particularité(s)
Rénovation d’un immeuble dans le centre d’Auray
Type d’opération
Vente de logements en l’état ou rénovés.
En chiffres
– T3 avec balcon de 66 m2 au 1er étage sur rue côté ouest Produit rare plein centre ville d’Auray, avec cet appartement à rénover / ascenseur / Livré avec 1 place de parking, + box fermé
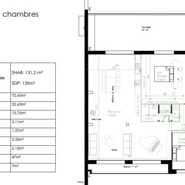
– T3 d’une superficie de 130 m 2 / au 2ème étage avec ascenseur dans un petit immeuble, lumière traversante exposé sud-ouest balcon côté ouest / terrasse de 47 m2 plein sud. Les meubles / selon les plans de vente / sont compris dans le prix : cuisine aménagée comprenant : plaque de cuisson (induction), four chaleur tournante, hotte filtrante, évier avec robinetterie et retour aménagé du salon (le réfrigérateur n’est pas compris) / Placards des chambres, dressing – Double cave + 1 place de parking couverte.
– T3 en duplex avec combles aménageables, double orientation avec balcon sud est, d’une superficie de 103 m2 /1 cave + 1 place de parking couverte.
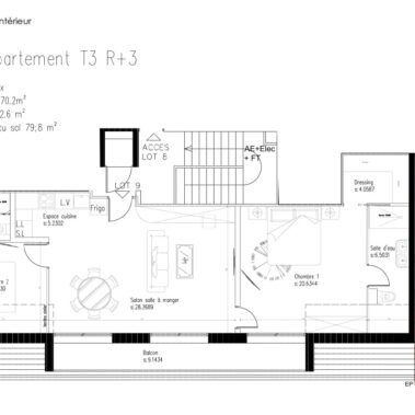
– T3 d’une superficie de 70 m2 au dernier étage avec ascenseur dans un petit immeuble, sur rue côté ouest, avec un balcon de 10 m2. Livré avec 1 place de parking, + 1 cave.
Restant à la vente
Tous les lots sont vendus.
Prix à partir de
Selon grille de prix.
Date de réservation possible
Dès aujourd’hui.
Date de livraison
Nous consulter.
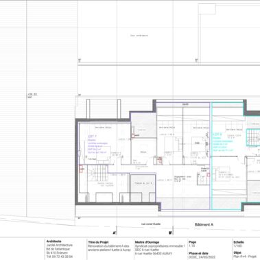
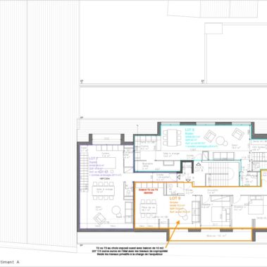
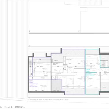
L'immeuble 6 rue Huette à Auray en images
Présentation graphique de l’immeuble 6 rue Huette à Auray. Ces documents ont été réalisés par le cabinet d’architecture dans le cadre de ce projet de construction, le projet étant en cours, ces documents sont non contractuels.
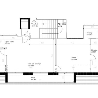
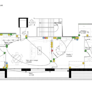
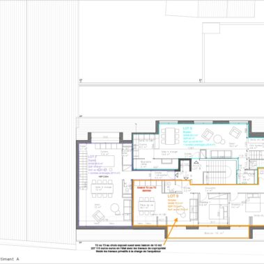
Plans de l'immeuble 6 rue Huette à Auray
Les plans du bâtiment d’habitation de l’immeuble 6 rue Huette à Auray (documents non contractuels).



























