
Localisation
4 rue des Cordiers, 35000 Saint-Malo.
Particularité(s)
Rénovation d’un immeuble de caractère intra-muros, au cœur de la ville et des remparts, 10 logements d’habitation.
Type d’opération
Vente de logements rénovés ou à rénover, spécial investisseur en déficit foncier.
En chiffres
416 m2 de surface, sur 5 niveaux R+4, 82 m2 par niveau.
Restant à la vente
Dernières opportunités.
Prix à partir de
T1, T2, T3 ou T4, selon grille de prix sur simple demande.
Date de réservation possible
Dès aujourd’hui.
Date de livraison
2020, nous consulter.
Vues 3D des appartements
Ces vues intérieures sont présentées à titre indicatif afin de donner le futur esprit de ces logements, ces documents ne sont pas contractuels. Crédits photos : AD Architecte.
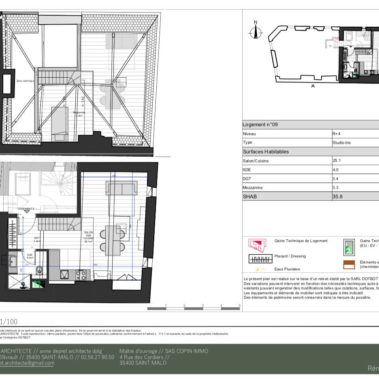
Plans des appartements
Plans d’aménagements intérieurs travaillés avec l’architecte AD Architecte afin de simuler une représentation des futurs logements. Ces documents sont non contractuels, ce ne sont en aucun cas des plans d’exécution et ne pourront servir à la réalisation des travaux. Crédits photos : AD Architecte.




















