Localisation
Rue Hoche, lieu-dit du Dolmen de Rondossec, 56340 Plouharnel.
Particularité(s)
Localisation idéale : au calme orienté vers l’océan, sur la route de Sainte Barbe (accès à la plage à pieds, à vélo).
Type d’opération
Vente de logements neufs.
En chiffres
139 m 2, parcelle de 309 m2 / 2 places de parking privatives
Restant à la vente
Opération réalisée / tous les lots vendus.
Prix à partir de
Selon grille de prix.
Date de réservation possible
Tous les lots sont vendus.
Date de livraison
Livré.
Demande de renseignement par mail.
Les Maisons de Surf à Plouharnel en images
Présentation graphique des maisons et appartements. Ces documents ont été réalisés par le cabinet d’architecture dans le cadre de ce projet de construction, le projet étant en cours, ces documents sont non contractuels..
Vues 3D des maisons de Surf à Plouharnel
Ces vues intérieures sont présentées à titre indicatif afin de donner le futur esprit de ces logements, ces documents ne sont pas contractuels.
Aménagement d'un appartement des maisons de Surf à Plouharnel
Découvrez l’aménagement intérieur d’un appartement témoin du programme des maisons de surf à Plouharnel.
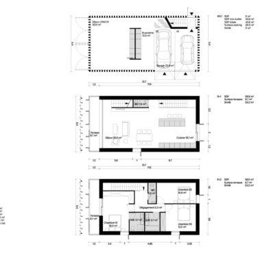
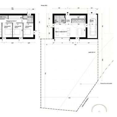
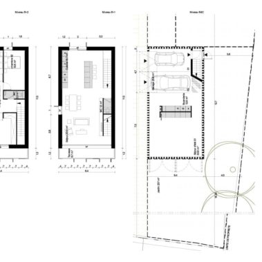
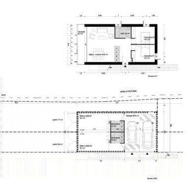
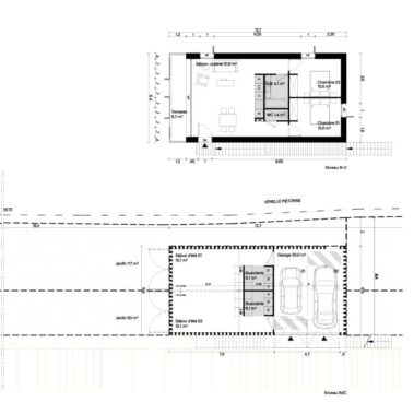
Extrait du permis de construire du projet des Maisons de Surf à Plouharnel
Plan de situation, plan de masse, plans de ventes… ensemble de documents faisant partie intégrante du permis de constuire déposé. (documents non contractuels).
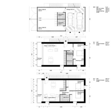
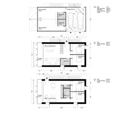
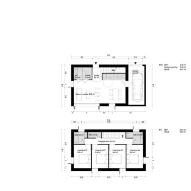
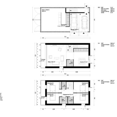
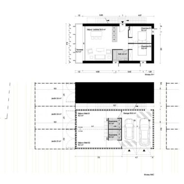
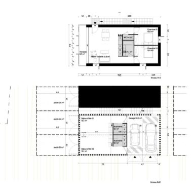
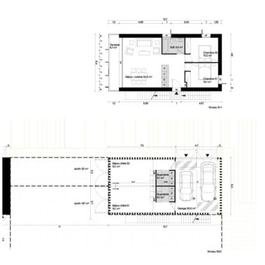
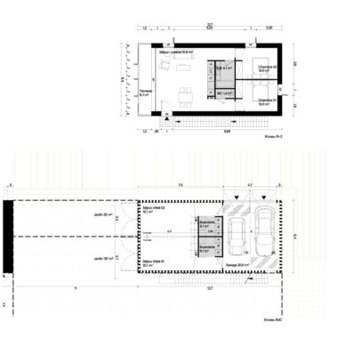
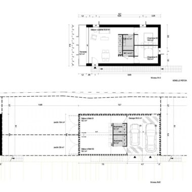
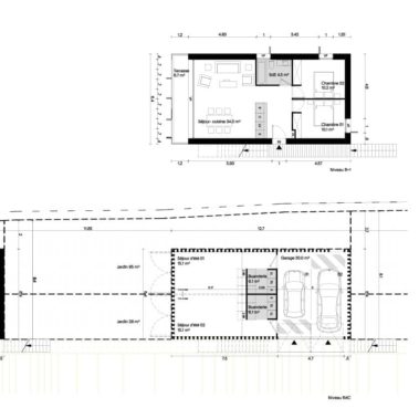
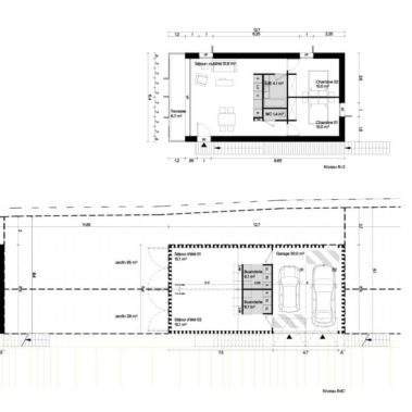
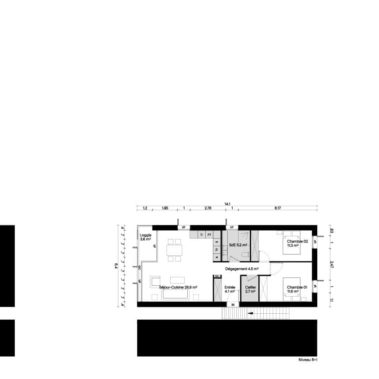
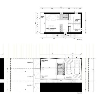
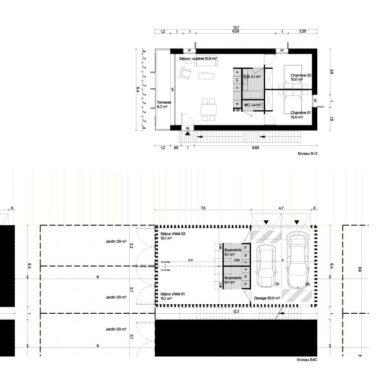
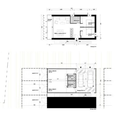
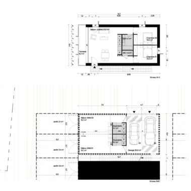
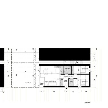
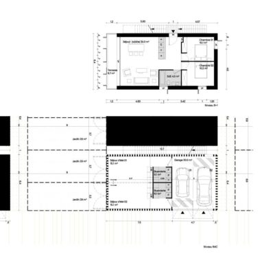
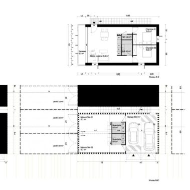
Plans de vente des Maisons de Surf à Plouharnel
L’ensemble des plans des maisons et appartements des Maisons de Surf à Plouharnel (documents non contractuels).

























































