
Localisation
8 rue Tricors 56400 AURAY.
Particularité(s)
Transformation d’une demeure atypique, façade classée Art Déco, en 4 appartements d’habitation.
Type d’opération
Vente de logements rénovés ou à rénover.
En chiffres
304 m2 de surface habitable, soit 1 appartement par niveau, belle hauteur sous plafond.
Restant à la vente
Plus aucun lot à la vente.
Prix à partir de
Selon grille de prix.
Date de réservation possible
Plus de réservation.
Date de livraison
Nous consulter.
Programme finalisé
La Maison Tricors en images avant travaux de rénovation
Quelques photos extérieures et intérieures de l’immeuble Tricors à Auray avant rénovation.
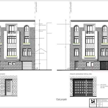
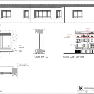
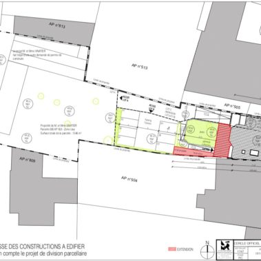
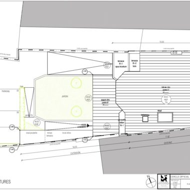
Dossier du permis de construire de La Maison Tricors
Ci-dessous les éléments constituant le permis de construire déjà déposé et validé : Plans de masse de l’existant et du futur projet, Façades existantes et futures, plans de coupe, de situation… .
Aux abords de la Maison Tricors
La maison Tricors est située dans le centre d’Auray, dans un quartier charmant et préservé. Tout est accessible à pied, restaurants, commerces, places, écoles, aires de jeux …
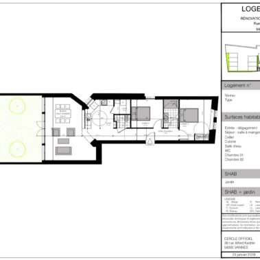
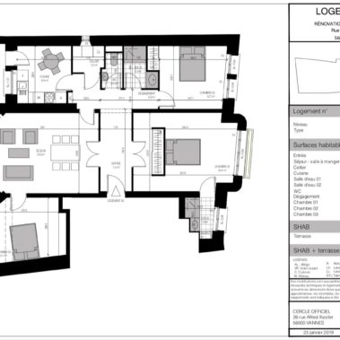
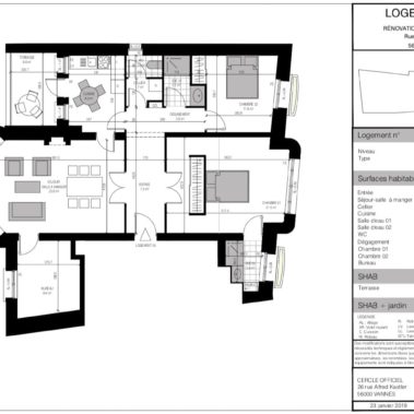
Plans de la Maison Tricors
Après division, voici les plans des 4 appartements proposés à la vente.
Auray & Saint-Goustan à quelques minutes à pied de La Maison Tricors
Auray est une « petite » ville pleine de charme, à quelques minutes de Vannes, au carrefour entre Lorient et les villes de la côte comme : Plouharnel, Carnac, la Trinité-sur-Mer ou encore Quiberon.









































































