
Localisation
Lieu dit Kerbredeva, Locmaria, 56400 Ploemel.
Particularité(s)
Terrain constructible avec permis de construire accepté, permis d’aménager, libre de constructeur.
Type d’opération
Vente d’un terrain constructible et/ou d’une maison neuve.
En chiffres
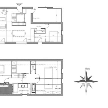
149 m2 de surface habitable.
Restant à la vente
Tous les lots sont vendus.
Prix à partir de
Selon grille de prix.
Date de réservation possible
Plus aucun lot à la vente.
Date de livraison
Tous les lots ont été livrés.
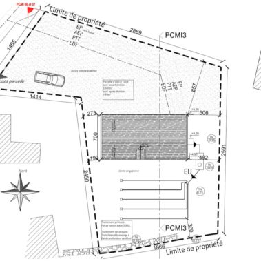
Dossier du permis de construire pour ce terrain à Ploemel
Ci-dessous les éléments constituant le permis de construire déjà déposé et validé : Plans de masse de situation, plan de masse, façades, plans …






